Licensed Realtors® in South Dakota & Nebraska

Need help finding the right property? Let us help

1101 Broadway Avenue
Yankton, SD 57078

  • 3,030 total sq. ft.
  • 1 Bath
MLS #116739

Features

Description

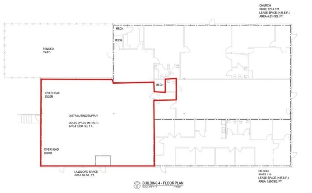
WAREHOUSE / FLEX SPACE FOR LEASE – BROADWAY FRONTAGE Now available in Morgan Square: 3,030 SF of prime industrial/flex space ideal for warehouse, distribution, or supply operations. Featuring two (2) 14' overhead doors, open layout, private restroom, and building signage opportunity. This highly visible property sits on Broadway Avenue (Highway 81), offering strong daily traffic exposure (17,674 VPD) and convenient access for trucks, deliveries, and customers. Surrounded by national and regional tenants including Jimmy John’s, Domino’s, Fastenal, South Point Gaming Lounge, and the Orthopedic Institute. Lease Terms: $8.00/SF/YR base rent + NNN Zoning: Commercial/Industrial Flex Availability: Immediate Rare opportunity to lease functional warehouse space in a sought-after location. Make contact today to schedule a tour.

Interested in this property?

Kaye O'Neal

Schedule A Showing

Property Info

Type Real Estate
Year Built 2005
Bathrooms 1
Heating Forced Air
Cooling Central
Sewer City
Water City
County Yankton
Square Footage 3,030 Total | 3,030 Main Floor
Approx Acres 0.00
Taxes $2,141
Tax year 2024

This information is deemed accurate but not guaranteed.

Map Location

Mortgage Calculator

Loan Information

$
%
Years

Monthly Payment

Interest Paid

Website & MLS Integration by Fused Interactive